技術交流 | 繩鋸法在市政管涵施工中的應用
1 項目背景
合肥經濟技術開發區天都路(北區界-方興大道)工程全長約6.9km,為區域內雨水主排通道,本次設計對主排管涵按P=5年進行提標改造,沿天都路方向新建雙孔 B4800H2600雨水箱涵。
設計時,樁號(18+90~18+95)段雙孔箱涵施工區域內有4.2m寬*2.5m現狀綜合管廊,管廊內有DN200、300蒸汽管道、DN100冷凝管道、DN300空氣壓縮管道、DN48除鹽管道、強電及弱電管道,受下游現狀雨水箱涵標高限制,該綜合管廊底高程(25.903m)與箱涵設計頂高程(25.744m)相差僅16厘米,對現狀綜合管廊的保護處理是本工程的重難點之一。



2 技術方案
常規新建排水管道與其他現狀管道(線)交叉,高程發生沖突的處理措施主要有: 雙(多)孔法、暗渠法、倒虹管法等,本工程同現狀綜合管廊相交叉主要存在以下幾個施工難點:
(1)新建箱涵為雙孔B4800H2600,過流能力約54m3/s,若采用多孔法需采用6根2600雨水管替換,無法采用多孔法頂管施工。
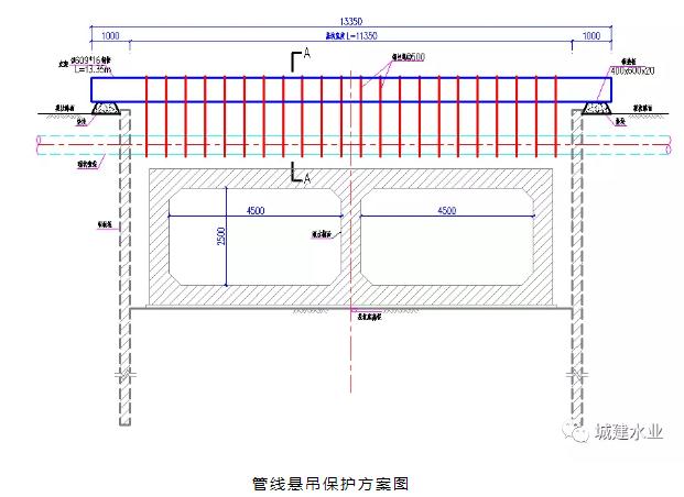
(2)現場施工時兩側采用鋼板樁支護,開挖斷面15m,挖深約8米,無法將現狀綜合管廊整體懸吊保護實施。
根據現場情況,設計考慮兩個方案,具體介紹如下:
方案一、管線遷改
建議將管線全部遷改,新建管廊采用成品d2200砼管,在選擇合適位置后鋪設新建管廊,新建管線廊斷面如下:

待與管線產權單位協商確定停運時間后,進行穿線、管線對接等工作,完成線路遷改。
遷改完成后對舊管廊進行拆除,按照圖紙完成道路工程施工。
上述方案需得到管線產權單位的同意并在一定時間段停運遷改,遷改工程量較大、工期長,費用高,本次不予采用。
方案二、管線懸吊保護
本工程難點在于現狀綜合管廊難以整體懸吊保護,需先將已建管廊頂板拆除,拆除過程中應防止破碎頂板墜落而造成廊內管線的破壞,頂板拆除后,可采用鋼纜繩或角鋼等連接措施將廊內管線懸吊于頂部鋼梁之下,雨水箱涵之上。

為避免拆除過程中的破碎頂板墜落,本次采用繩鋸法切割現狀管廊,首先在管廊上劃分分塊切割線,用鉆孔機在頂板上鉆好通孔,穿上鏈條,開通水管,調節水流大小,通過控制器將鏈條收緊,最后采用吊車將頂板分塊吊運。


通過繩鋸法拆除已建管廊,對現狀管線采用懸吊保護后完成雨水箱涵施工。待雨水箱涵建成并回填完畢后根據管線產權單位的意見、道路荷載及相關規范要求,對管廊進行原位恢復重建,恢復重建的管廊頂板需將懸吊的管線放置于廊內后方可施工。
3 結語
繩鋸法多用于橋梁及房建工程,隨著近幾年綜合管廊的快速發展,市政道路改造過程中管線交叉情況更為復雜,本工程目前已順利竣工,在實施過程中,繩鋸法的應用為后期大型雨水箱涵同管廊等管線交叉提供了一種新的解決思路。
以上是小編收集整理的技術交流 | 繩鋸法在市政管涵施工中的應用部分內容來自網絡,如有侵權請聯系刪除:153045535@qq.com;
本文地址:http://m.golddiy.com.cn/shuichuli/665.html










